Ländliche Ruhe trifft Komfort – großzügiges Haus für Familien und Hobbys
- Ansprechpartner
- Cohrs ImmobilienService
Herr Tobias Cohrs - info∂cohrs-immoservice.de
- Rufnummer
- 004951621444
Stammdaten
- Objektnummer
- CCB1.tc.1721
- Adresse der Immobilie
- Vollständige Anschrift auf Anfrage 29664 Walsrode / Bockhorn
- Objektart
- Haus
- Verfügbar ab
- Sofort
- Baujahr
- 1965
- Zustand
- Sanierungsbedürftig
Preise
- Kaufpreis
- 219.000,00 €
Weitere Informationen
- Wohnfläche
- 129,83 m²
- Ausstattungskategorie
- Standard
- Grundstücksfläche
- 1000,00 m²
- Art der Befeuerung
- Öl
- Wohneinheiten
- 2.00
- Zimmer
- 6
- Terrassen
- 1
- Balkon
- 1
- Schlafzimmer
- 5
- Badezimmer
- 2
- Art der Stellplätze
- Garage
- Küche
- Einbauküche
- Ausrichtung Balkon/Terrasse
- Westen
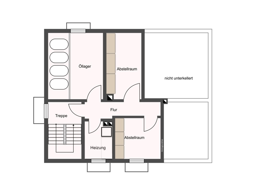
- Unterkellert
- Ja
Energieausweis
- Energieausweis-Art
- Bedarfsausweis
- Gültig bis
- 09.06.2025
- Effizienzklasse
- H
- Endenergiebedarf
- 500,50 kWh/(m²a)
- Jahrgang
- ab 01.05.2014
- Baujahr
- 1968
- Primärenergieträger
- Öl
Der oben genannte Energiekennwert spiegelt den Energieverbrauch in Kilowattstunden pro Jahr und Quadratmeter (kWh/(a⋅m²)) wieder und liefert den errechneten Energieverbrauch. Weitere Informationen finden Sie hier unter de.wikipedia.org/wiki/Energiebedarfsausweis
Objektbeschreibung
In einer ruhigen, idyllisch gelegenen Sackgasse von Bockhorn präsentiert sich dieses charmante Siedlungshaus aus dem Jahr 1965, dessen rote Klinkerfassade und das klassische Ziegeldach ihm einen zeitlosen, einladenden Charakter verleihen. Die solide, massiv errichtete Bausubstanz bildet eine hervorragende Grundlage, um das Anwesen in ein modernes und energetisch zeitgemäßes Refugium zu verwandeln.Die großzügige und flexible Raumaufteilung auf zwei Wohnebenen schafft ideale Voraussetzungen für gemeinsames Familienleben und individuelle Rückzugsorte. Im Erdgeschoss dominieren ein freundliches, sonnig ausgerichtetes Wohnzimmer und ein einladender Essbereich, die sich perfekt für Feste, Familienzeit und gemütliche Abende eignen. Ergänzt werden diese Räume durch eine funktionale Küche sowie ein praktisches Badezimmer – ein stimmiges Ensemble, das jedem Familienmitglied seinen persönlichen Lieblingsplatz bietet.
Im Dachgeschoss erwarten Sie ein behagliches Schlafzimmer, ein liebevoll gestaltetes Kinderzimmer sowie ein zusätzlicher Wohnraum mit kleiner Küche und Bad. Diese Etage eröffnet vielfältige Nutzungsmöglichkeiten: Als privater Rückzugsbereich für Groß und Klein, als Gästeetage oder als inspirierender Arbeits- und Kreativraum.
Das Anwesen wird durch ein massives Nebengebäude im gleichen architektonischen Stil harmonisch ergänzt. Auch die teilweise unterkellerte Struktur bietet praktische Lager- und Abstellflächen. Der Gartenanteil rundet das Gesamtbild ab und lädt zum Spielen, Entspannen und Gärtnern ein – ein Ort, an dem sich Alltag und Erholung wunderbar verbinden lassen.
Die ruhige Lage inmitten einer Sackgasse, umgeben von viel Grün und einer behutsam gewachsenen, freundlichen Nachbarschaft, schenkt Ihrer Familie ein Umfeld voller Geborgenheit und natürlicher Harmonie. Gleichzeitig eröffnet die Immobilie enormes Entwicklungspotenzial: Eine moderne, energetische Sanierung – etwa der Austausch der Öl-Heizung aus dem Jahr 1991 sowie Anpassungen an Fenstern und Elektrik – ermöglicht es Ihnen, ein lichtdurchflutetes, nachhaltiges Zuhause für kommende Generationen zu schaffen.
Ausstattung
+ Charmantes Siedlungshaus mit roter Klinkerfassade und klassischem Ziegeldach+ Großzügige, flexible Raumaufteilung mit zwei Wohnetagen
+ Gemeinschafts- und Rückzugsräume für jedes Familienmitglied
+ Essbereich und freundliches Wohnzimmer im EG – ideal für Feste und Familienzeit
+ Ruhig gelegen in einer Sackgasse, umgeben von viel Grün und liebevoll gewachsener Nachbarschaft
+ Solide Bausubstanz mit großem Entwicklungspotenzial für moderne und energetische Sanierung
+ Massives Nebengebäude im gleichen Stil
+ Teilweise unterkellert, praktische Lager- und Abstellflächen
+ Gartenanteil für Spielen, Relaxen und Hobbygärtnern
+ Sonnige Ausrichtung der Wohnräume
Zusatzinformation zur Lage
Bockhorn ist ein Stadtteil von Walsrode und liegt in der reizvollen Landschaft der südlichen Lüneburger Heide. Der Ort bietet eine angenehme Mischung aus naturnahem Wohnen und guter Anbindung an die Region. Das Zusammenleben ist freundlich und familiär – man kennt sich, hält gern einen kurzen Schnack am Gartenzaun und trifft sich bei Dorffesten oder anderen Veranstaltungen.Der Alltag gestaltet sich dank der Nähe zu Walsrode und Bad Fallingbostel unkompliziert: Schulen, Kindergärten, Ärzte und Einkaufsmöglichkeiten sind schnell erreichbar. Auch Pendler profitieren von den guten Straßen- und Zugverbindungen nach Hannover, Bremen und Hamburg – ob für den Arbeitsweg oder einen spontanen Ausflug in die Stadt.
Die Umgebung lädt zu Spaziergängen, Radtouren und Naturerkundungen ein. Wer regionale Produkte schätzt, findet auf den umliegenden Höfen eine schöne Auswahl. In der Nähe sorgen außerdem Ausflugsziele wie der Weltvogelpark Walsrode, der Serengeti-Park oder der Heide Park Soltau für abwechslungsreiche Freizeitmöglichkeiten.
So verbindet Bockhorn ländliche Ruhe, viel Natur und eine solide Infrastruktur – ideal für alle, die Wert auf Entschleunigung, Familienfreundlichkeit und ein herzliches Miteinander legen.
Sonstiges
Es liegt ein Energiebedarfsausweis vor.Dieser ist gültig bis 9.6.2025.
Endenergiebedarf beträgt 500.50 kwh/(m²*a).
Wesentlicher Energieträger der Heizung ist Öl.
Das Baujahr des Objekts lt. Energieausweis ist 1968.
Die Energieeffizienzklasse ist H.
+++BITTE BEACHTEN SIE, DASS WIR ANFRAGEN OHNE VOLLSTÄNDIGE ANGABE DER ADRESSE INKL. TELEFONNUMMER NICHT BEARBEITEN KÖNNEN+++
Bitte haben Sie dafür Verständnis, dass wir Anfragen nur nach Bekanntgabe Ihrer kompletten Kontaktdaten (vollständigen Adressangaben mit Vor- und Zunamen, Adresse und Ihre Telefonnummer) per E-Mail bearbeiten. Das betrifft auch die Herausgabe der Objektadressen.
Urheberrecht:
Wir weisen ausdrücklich darauf hin, dass sämtliche Texte, Fotos, Grafiken und Inhalte urheberrechtlich geschützt sind. Ohne vorherige schriftliche Genehmigung ist das vollständige oder teilweise Kopieren, Verändern, Vervielfältigen oder Veröffentlichen untersagt.
Haftungsausschluss:
Alle Daten in diesem Exposé beruhen auf Angaben des Verkäufers/Vermieters. Für die Richtigkeit der Verkäufer-, Vermieter-, Anbieter- und Angebotsangaben übernehmen wir keine Haftung und Gewähr. Irrtümer bleiben vorbehalten. Alle Flächenangaben sind ca.-Werte, daher sind Abweichungen möglich.
Vertraulichkeit:
Sämtliche Informationen einschließlich der Objektnachweise von Cohrs ImmobilienService sind ausschließlich für den Endkunden bestimmt. Diesem ist es ausdrücklich untersagt, die Objektnachweise und Objektinformationen ohne ausdrückliche Zustimmung von Cohrs ImmobilienService, die zuvor schriftlich erteilt werden muss, an Dritte weiterzugeben. Verstößt der Kunde gegen diese Verpflichtung und schließt der Dritte oder andere Personen, an die der Dritte seinerseits die Informationen weitergegeben hat, den Hauptvertrag ab, so ist der Kunde zur Schadenersatzzahlung mind. in Höhe des Provisionssatzes (6 % zzgl. der gesetzl. USt. bzw. 2 Nettokaltmieten zzgl. der gesetzl. USt.) verpflichtet.
Pflichten des Interessenten und Rechte des Verkäufers/Vermieters:
Der Vermieter/Verkäufer hat uns einen Auftrag zur Vermittlung seiner Immobilie erteilt. Bitte haben Sie Verständnis dafür, dass Besichtigungstermine und Verhandlungen ausschließlich über uns zu führen sind. Bitte bewahren Sie die Privatsphäre des Verkäufers/Vermieters und ggf. der Bewohner der Immobilie und sehen Sie von Anrufen, unangekündigten Besuchen/Grundstücksbegehungen oder Kaufabsichtserklärungen ohne die Hinzuziehung unseres Maklers ab. Zuwiderhandlungen können die Zuschlagserteilung an den jwl. Ausführenden beeinflussen.
Speicherung von Daten:
Wir weisen darauf hin, dass Ihre vollständigen Kontaktdaten zum Zwecke der weiteren Bearbeitung nur mit vorherigem Einverständnis in unserer elektronischen Datenbank gespeichert werden. Die Einwilligung zur Speicherung kann jederzeit widerrufen werden. Angaben zum Thema Datenschutz finden Sie auf unserer Website unter folgendem Link:
https://www.cohrs-immoservice.de/Datenschutz.htm
Für den Mieter fällt bei Vermietung von Wohnraum keine Maklerprovision an (Bestellerprinzip). Bei Vermietung von Gewerberaum ist der Makler berechtigt, auch eine Mieterprovision zu berechnen.

